Bộ trượt xếp Hafele 408.31.011 là hệ phụ kiện cửa trượt xếp cao cấp dành cho cửa gỗ, được thiết kế tối ưu cho các không gian nội thất hiện đại như tủ quần áo, tủ âm tường hoặc hệ lưu trữ đa năng. Sản phẩm tích hợp bản lề với cơ chế đóng giảm chấn, giúp cửa vận hành êm ái, hạn chế va đập và tăng độ bền trong quá trình sử dụng lâu dài.
Đặc điểm nổi bật
- Thiết kế chuyên dụng cho hệ cửa trượt xếp gỗ, mang đến giải pháp tối ưu không gian cho tủ quần áo, tủ âm tường và khu vực lưu trữ hiện đại.
- Cơ cấu trượt – gập đồng bộ giúp các cánh cửa vận hành linh hoạt, đóng mở nhẹ nhàng và tiết kiệm diện tích tối đa.
- Tích hợp bản lề có cơ chế đóng giảm chấn, hạn chế va đập mạnh, tăng độ bền và đảm bảo chuyển động êm ái.
- Hệ ray và bánh xe dẫn hướng vòng bi chất lượng cao giúp cửa di chuyển ổn định, giảm ma sát và hạn chế tiếng ồn khi sử dụng.
- Cấu tạo từ nhôm, thép và nhựa kỹ thuật cao cấp, đảm bảo độ cứng vững, chịu tải tốt và tuổi thọ lâu dài.
- Lắp đặt bên phải, thiết kế tối ưu giúp thi công thuận tiện và đồng bộ với hệ Hawa Concepta.
Thông số kỹ thuật
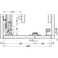
| Lĩnh vực ứng dụng | Cho cửa xếp trượt ngang |
| Thích hợp | Cho 3 cửa kết hợp với Hawa Concepta |
| Số cửa | 2 |
| Chiều rộng cửa | 300 – 700 mm |
| Trọng lượng cửa tối đa | ≤ 25 kg |
| Độ dày cửa | 19 – 26 mm |
| Phiên bản | Bản lề với cơ chế đóng giảm chấn |
| Chất liệu / Hoàn thiện | Nhôm, Thép, Nhựa; Không màu, mạ |
| Bánh xe trượt dẫn hướng | Vòng đệm bi |
| Vị trí lắp đặt | Bên phải |
| Tham chiếu đơn hàng |
Có thể yêu cầu cắt thanh gia cố theo chiều dài mong muốn. Vui lòng đặt hàng bas nối riêng. |
| Thành phần trọn bộ | 1 bộ gồm: 2 thanh kết nối liên kết các thanh dành cho rãnh dừng (1 trên, 1 dưới) |
| Thông tin bổ sung |
|





