Tay nắm gạt đế dài C/C 72mm Hafele 903.98.463 là dòng phụ kiện cửa cao cấp với thiết kế nguyên thể chắc chắn, mang lại sự đồng bộ và độ bền cao trong quá trình sử dụng. Sản phẩm được làm từ inox 304 chống gỉ sét hiệu quả, phù hợp lắp đặt cho nhiều loại cửa trong nhà ở, căn hộ hay văn phòng.
Đặc điểm nổi bật
- Thiết kế nguyên thể chắc chắn: Kết cấu liền khối giúp tăng độ ổn định, hạn chế rung lắc và nâng cao độ bền khi sử dụng lâu dài
- Chất liệu cao cấp: Inox 304 có khả năng chống gỉ sét tốt, đảm bảo độ bền và giữ được vẻ ngoài sáng đẹp theo thời gian
- Vận hành êm ái: Cơ chế hoạt động mượt mà giúp đóng mở cửa nhẹ nhàng, mang lại trải nghiệm sử dụng dễ chịu
- Độ bền cao: Sản phẩm được kiểm tra với tần suất lên đến 100.000 lần sử dụng, đảm bảo hoạt động ổn định
- Lắp đặt tiêu chuẩn: Khoảng cách C/C 72mm phổ biến giúp dễ dàng lắp đặt và thay thế trên nhiều loại cửa
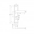
Thông số kỹ thuật
| Thông số | Chi tiết |
|---|---|
| Model | Hafele 903.98.463 |
| Loại tay nắm | Tay nắm gạt đế dài (nguyên thể) |
| Hướng mở | Mở phải |
| Khoảng cách C/C | 72 mm |
| Độ dày cửa phù hợp | 38 – 50 mm |
| Chất liệu | Inox 304 |
| Màu hoàn thiện | Inox mờ |
| Tần suất sử dụng | 100.000 lần kiểm tra |
| Đóng gói | 1 bộ |
| Thành phần bộ sản phẩm | 2 tay nắm + vít |
| Lưu ý | Chưa bao gồm thân khóa và ruột khóa |





